Macedon Ranges Shire Council
-

Plan to reclaim old station aired
The old Riddells Creek Fire Station could become home to local groups like the Men’s Shed and Lions Club if…
-

Demolition day arrives for skatepark
It’s been 11 years in the making and now works on a new Romsey Skatepark are finally under way. Lancefield…
-

Deer control to begin
The impact of increasing feral deer populations has put control of numbers in the spotlight. Parks Victoria will, this week,…
-

Shoe recycling proves a hit
Kyneton Shoes and Accessories is encouraging locals to recycle shoes that are past their prime. Owners Andrew and Geraldine Ramselaar…
-

Open space plans open to feedback
Destination-level open spaces, use changes for existing sites and new open space areas are among plans highlighted in the draft…
-

Antisemitism confronts Gisborne
A bridge in Gisborne received a swift paint job after upset residents walked along a footpath underneath and were confronted…
-

Autumn Festival to go big
The Visitor Economy team at Macedon Ranges Shire Council has unveiled the 2026 Macedon Ranges Autumn Festival poster with artwork…
-

Public toilet thefts costly
Vandals stealing copper wire forced closure of five public toilets across the Macedon Ranges last week as another tourist-centric toilet…
-

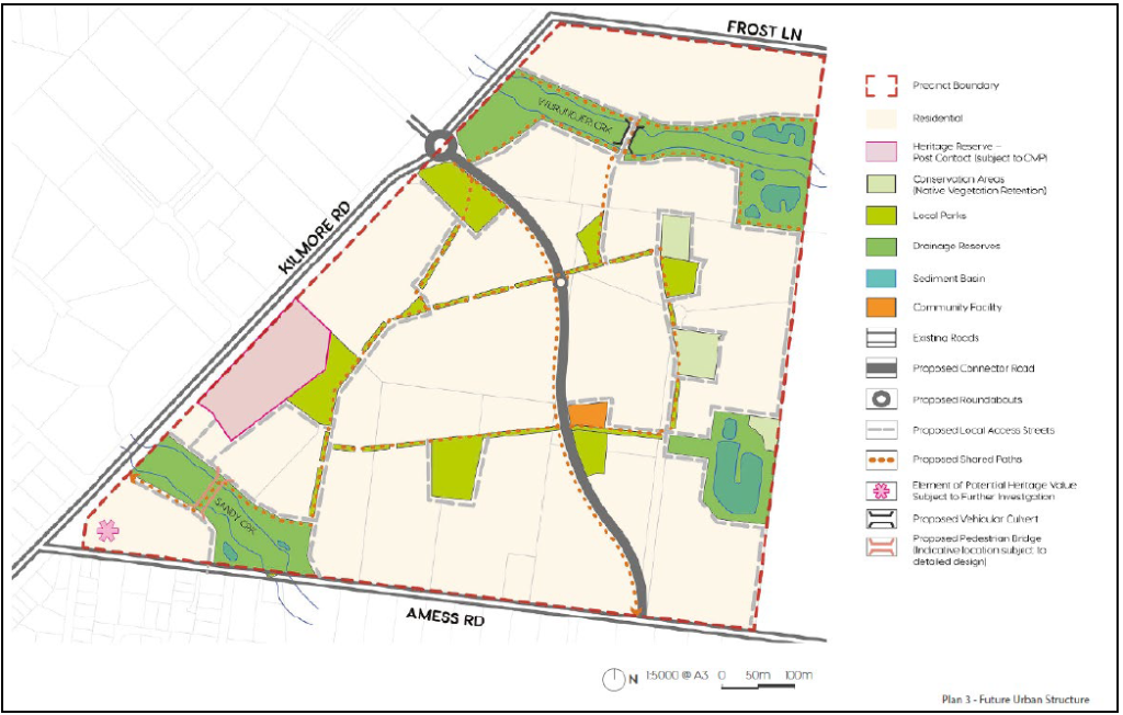
Riddell to double in size
A controversial development set to double the size of Riddells Creek has been approved by Victorian Government powers against local…
-

Reserve plan funded in good time
It didn’t make the budget but now Macedon Ranges Shire Council has found unspent funds for a Riddells Creek Recreation…
-

Tighter leash on free dog walking
A group of dog owners are barking back at a proposal to shorten the off-leash Campaspe River Walk Track. Macedon…
-

Riddells Creek to double in size
Macedon Ranges Shire Council has questioned the Victorian Government’s approval of an Amess Road development, to double the size of…
